Działka przemysłowa Chojnów
Chojnów, dolnośląskie
- 79 000 zł
- 5 250 m²
- 15,05 zł/m²
Renata Wiszniews...
Skontaktuj się
Działka przemysłowa Chojnów
Chojnów, dolnośląskie
zaktualizowane:
16 października 2025
Działka przemysłowa Chojnów
Zaktualizowane: 16 października 2025
79 000 zł 5 250 m² 15,05 zł/m²
Warto zadzwonić
wysokie zainteresowanie
przemysłowa
droga utwardzona
prostokąt
-
Rodzaj działki:
przemysłowaDojazd:
droga utwardzonaKształt:
prostokątMedia:
-Szczegóły ogłoszenia
- Typ oferty: działka na sprzedaż
- Cena: 79 000 zł (15,05 zł/m²)
- Forma własności: własność, księga wieczysta
- Działka: przemysłowa, 5 250 m²
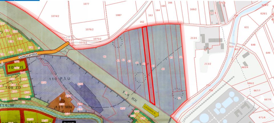
- kształt: prostokąt; długość: 300m; szerokość: 17m; teren płaski
- dojazd drogą utwardzoną, działka nieogrodzona
- Źródło: biuro nieruchomości: RAMHAUS Nieruchomości Wyceny Renata Wiszniewska, zaktualizowane: 16.10.2025
Oferta na wyłączność – nie szukaj dalej
Lokalizacja
- Adres: Chojnów, legnicki, dolnośląskie
- Otoczenie: luźna zabudowa jednorodzinna, teren niezabudowany, łąka, las, rzeka
- cicho
Opis nieruchomości
Przedstawiamy Państwu ofertę sprzedaży DZIAŁKI GRUNTU o powierzchni ok.0,525ha, położonej w miejscowości CHOJNÓW obr. 2.
Działka nr 46 (0,5125ha przeważająco RIVa; RIVb) oznaczona w MPZP symbolem 113 P funkcja przemysłowa;
Teren bez zabudowań, aktualnie użytkowany rolniczo.
OFERTA WYŁĄCZNA zapraszam do kontaktu
CENA: 79. (...)

